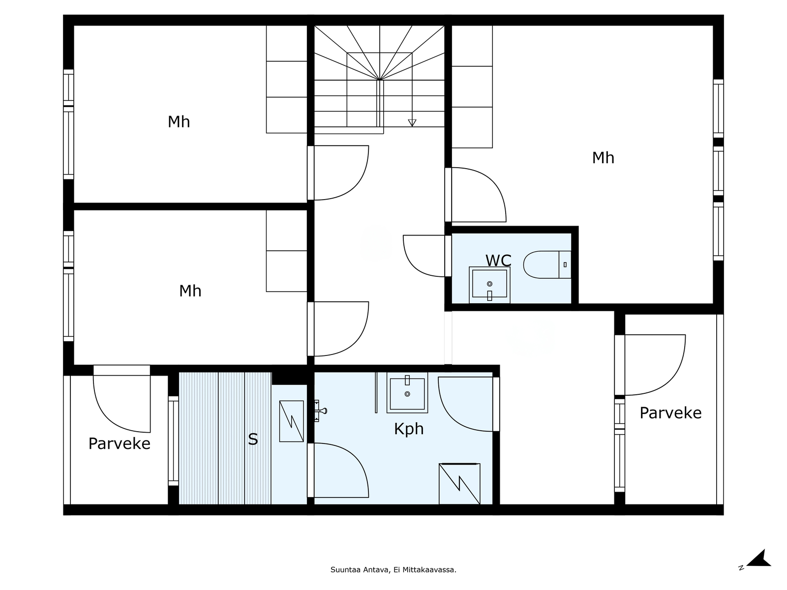
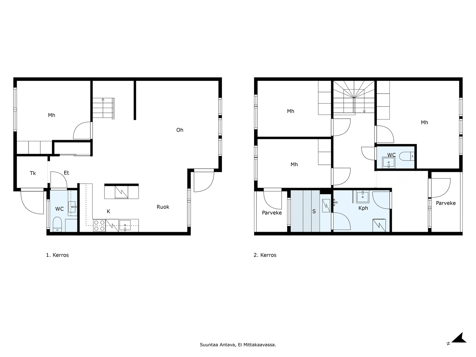
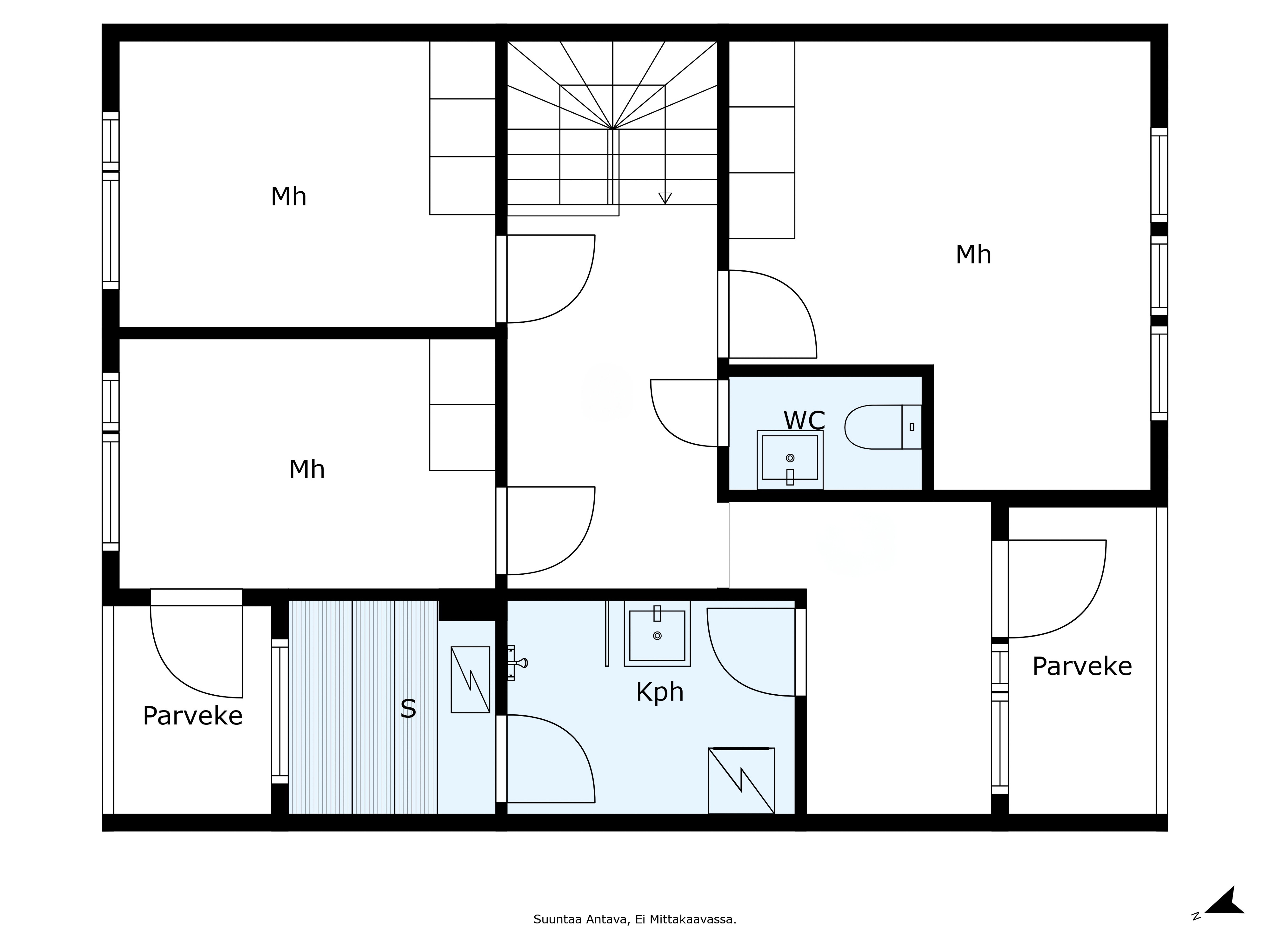
Tervetuloa tutustumaan tähän kahteen kerrokseen sijoittuvaan, tilavaan neljän makuuhuoneen kotiin Helsingin Vuosaaressa! Tämä koti tarjoaa mukavuutta ja käytännöllisyyttä. Oma sauna, tilava piha sekä merellinen sijainti tekevät arjesta mukavaa.
Asunnossa on hyvin suunniteltu pohjaratkaisu kahdessa kerroksessa, ja oma sauna tuo arkeen luksusta. Suojaisa ja tilava piha tarjoaa runsaasti tilaa niin lasten leikeille kuin aikuisten oleskelulle. Kauppaan sisältyy autotalli. Yhtiövastike kattaa myös autotallin kulut.
Rauhallinen sijainti veden läheisyydessä sekä erinomaiset ulkoilu- ja harrastusmahdollisuudet täydentävät kokonaisuuden. Tämä koti on harvinainen tilaisuus yhdistää tilavuus ja sijainti. Tule ja ihastu!
TIEDUSTELUT JA YKSITYISESITTELYVARAUKSET:
Kimmo Väliniemi 0400 458 094 tai kimmo@jemma.fi
I can provide services also in English.
Oma koti vielä myymättä? Autan sinua mielelläni myös nykyisen kotisi myynnissä. Jos myyntisuunnitelmat ovat teille ajankohtaisia, tai haluat muuten vain kartoittaa asuntosi ajankohtaisen markkina-arvon, pyydä minut maksuttomalle arviokäynnille.
Kohdetta myy

Esittely
Perustiedot
Rantakiventie 10
00960 Helsinki
Ei tarkistusmitattu
Hinta ja kustannukset
Laskettu velattomasta myyntihinnasta.
Hoitovastike 517,50 € / kk
Taloyhtiön isännöitsijä kerää 31 €/kk/osakas isännöintipalkkiota.
Lisätiedot
Kiuas vaihdettu 2014
Varusteet: sähkökiuas, ikkuna ulos
Seinien pintamateriaali: paneeli
Lattian pintamateriaali: laatta
- Maalattu: Alakerran makuuhuoneen seinät, eteisen ja olohuoneen seinät
-Maalattu: Alakerran lattiat (eteinen, keittiö, alakerran makuuhuone, olohuone)
- Uusi suihkuseinä yläkerran suihkutilaan
- Uusi peilikaappi ja allaskaappi yläkerran suihkutilaan
- Uusia valokatkaisijoita alakertaan
- Öljytty ulkoterassi
- 2013 Alakerran makuuhuoneen parketti vaihdettu
- 2010 Keittiöremontti, pintojen päivitystä ja maalausta, myös väliovet maalattu.
Asunnon tilat ja materiaalit
Varusteet: jääkaappipakastin, astianpesukone, pesukoneliitäntä, mikroaaltouuni, liesituuletin, integroitu liesi, erillisuuni
Seinien pintamateriaali: maalattu
Lattian pintamateriaali: parketti
Lattian pintamateriaali: parketti
Lattian pintamateriaali: parketti
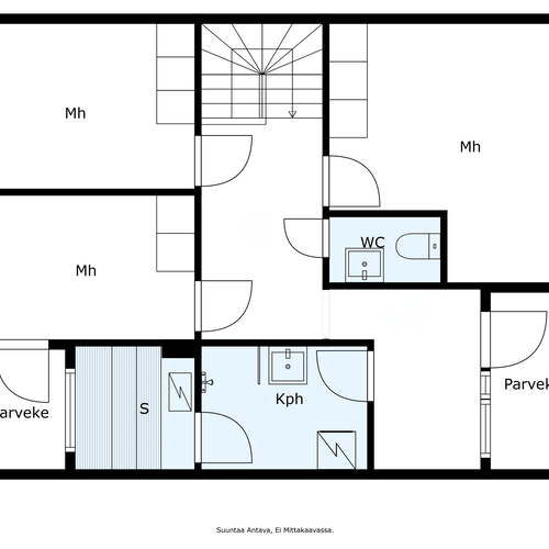
Makuuhuoneiden määrä: 4
Seinien pintamateriaali: kaakeli
Lattian pintamateriaali: laatta
Varusteet: lattiaan asennettu WC, bidee, allaskaappi, peilikaappi
Seinien pintamateriaali: kaakeli, paneeli
Lattian pintamateriaali: laatta
Katon pintamateriaali: PVC-kate
Taloyhtiö
-Kaukolämmön moottoriventtiilin vaihto 04/2024
-Autotallin lattian uusiminen kesällä 2023
2022 Ovisyvennösten kattolautojen uusiminen asunnossa D ja F
2021 kattoikkunat vaihdettu kaikkiin asuntoihin, ei vikoja mutta olivat kellastuneet, varastojen lukot vaihdettu
2020 ilmanvaihtoventtiilien lisääminen asuntoon D
2019 sähköjärjestelmän kuntokartoitus ja kartoituksen ehdotettujen korjausten tekeminen (alle 2000 e)
2019 ovisyvennysten kattolautojen uusiminen asunnoissa C ja F
2018 vuoden 2013 remontissa vedettyjen käyttövesiputkien käyttöönotto ylätaloon
2018 jätevesipumppujen ohjausyksikön vaihto
2017 kaukolämpöjärjestelmän perussäätö
2017 jätekaivon pumpun vaihto
2017 piha-aitojen päällyspeltien asennus
2016 piha-aitojen uusiminen
2016 ulkovesipostien paloventtiilien lämmitys
2015 autotallien moottorillisten ovien vaihto
2013 ylätalon patteriverkoston korjaus, jonka yhteydessä vedetty uudet käyttövesiputket ylätaloon 2011 vesikate uusittu, siirrytty kaukolämpöön 4/2011, vesipostien takuukorjaukset, ulko-ovet uusittu, vaihdettu internetyhteys ADSL-pohjaiseksi
2010 öljypoltin uusittu (ei enää käytössä) vesikatteen kuntokartoitus ja tarvittavat huoltokorjaukset, vesipostien saneeraus.
2009 ikkunaremontin II vaihe. Vaihdettu loput ikkunat sekä parvekkeiden ovet ja pihaovi. TV-antennivahvistimen vaihto.
2008 merenpuoleisten ikkunoiden (14 kpl) osittainen vaihto. kylmäkellarin kompressorin uusiminen ja jäähdytysaineen vaihto. autotallivalojen asennus, TV-antennin uusiminen.
2006 asuntokohtaisten vesiventtiilien vaihto (yläkerran putkien sulut + WC:t).
2005 jätevesikaivon pumppujen laaja huolto (vuosittaista perushuoltoa kattavampi).
2004 TV-antenniverkon digi-muutostyöt. Kattokaivojen saneeraus. Valoikkunoiden vaihto.
2003 ilmastointihormien nuohous. Laajakaistaverkon asennus. Uusien vesivanerien asennus katolle huoneistojen D ja E sekä E ja F välille.
2002 öljysäiliön kuntokartoitus (todettu hyväkuntoiseksi) ja huolto. Autotallien ovien pintahuolto. 2000-2001 laaja piharemontti: mm. sadevesijärjestelmä uusittu, perusmuurilevyt ja styroxit asennettu, salaojitukset uusittu, reunakivet, kivetykset, laatoitukset ja mukulakivet asennettu, asfaltointi uusittu, kestopuiset askelmat tehty, kestopuinen suoja jäteastioille rakennettu, tukimuuri tehty autotallin päätyyn, Lappset-keinu asennettu, ylätalon päädyn sokkeli tuettu.
050 379 8040, heikkila.ilmo@gmail.com
Muut lisätiedot
Asunnon käytössä olevat autopaikat: autotalli



















































